Rf. 0837 Casa Rural, Villaviciosa

Rf. 0837 Casa Rural, Villaviciosa

Casa Rural en Villaviciosa. Parcela de 2000 m2, a 5 km de Villaviciosa y a 30 min. de Gijón y Oviedo. Licencia como Casa Rural para 6 personas. Consta de salón-comedor, cocina, cuatro habitaciones, dos baños, despensa, cuarto de calderas. Terraza. Dos locales adosados de 100 m2 en total.

Añadir al carro No se ha configurado datos de vendedor 198000.00 €

Casa Rural en activo en Villaviciosa. Vivienda de 120 m2 para entrar a vivir, en parcela de 2000 m2, a 5 km de Villaviciosa y a 30 min de Gijón y Oviedo. Parcela llana, soleada y conarboles frutales en inmejorable situación.
Actualmente cuenta con licencia para explotación como CASA RURAL para 6 personas.
Excelente acceso desde la VV-10. La vivienda consta de un amplio salón-comedor, una gran cocina, cuatro habitaciones (tres de ellas dobles), dos baños, una despensa y un cuarto de calderas. Espacio para terraza con puerta de acceso directo desde la casa. Además de la vivienda, en la parcela se encuentran dos locales pegantes de 100 me2 en total y un local pequeño en el que se encuentran dos depósitos de gasoil.
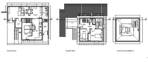
La casa se divide en tres plantas, con la siguiente distribución:
La planta baja se compone de un amplio salón-comedor, la cocina, una habitación matrimonial, un baño y una despensa.
La planta primera dispone de una habitación matrimonial, una individual y un baño.
La planta segunda es una habitación doble abuhardillada.
Calefacción y agua caliente con gasoil y fosa séptica instalada recientemente.

Certificación energética: en trámite

Información de contacto

Contáctanos. Usa el formulario para una respuesta rápida
  • MÓVIL: 662 42 52 71

  • MAIL: info@inmobiliarialisardoalvarez.com
  • MAIL: lisardoinmo@gmail.com

Estamos presentes en los medios sociales

más relevantes del panorama internáutico.

Inmobiliaria Lisardo Alvarez ¡ Tu casa en Asturias !

2014 © CREOWEBS. Diseñamos y creamos